8(800) 201-16-59
8(800) 201-16-59
г. Калуга, улица Промышленная д. 56
пн-пт 8:00-17:00 сб-вс выходной
Заказать звонок

ООО Группа компаний «Пышка»

Адрес
г. Уфа, ул. Бабушкина, 17/1
Объект
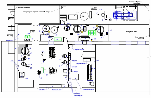
Цех по переработке молока мощностью 5 т в сутки
Ввод в эксплуатацию
сентябрь 2019
Ассортимент продукции
молоко, кефир, айран, эремчек, сметана, сливочное масло, творог, мягкий сыр «Адыгейский»
Цех по переработке молока мощностью 5 тонн в сутки Ассортимент продукции: молоко, кефир, айран, эремчек, сметана, сливочное масло, творог, мягкий сыр «Адыгейский»
Заказать проект
Задать вопрос

    Постановка задачи

    Цех по переработке молока мощностью 5 тонн в сутки Ассортимент продукции: молоко, кефир, айран, эремчек, сметана, сливочное масло, творог, мягкий сыр «Адыгейский»

    Решение

    Цех по переработке молока мощностью 5 т в сутки

    Другие проекты

    ООО "АгроИнвестПроект"
    Строительство с нуля молочного завода по нашему технологическому проекту. Завод по переработке молока с собственной фермы мощностью 17 т/смену с производством 48 наименований продукции
    КФХ Карсакбаев
    В Агаповском районе Челябинской области КФХ Карсакбаев успешно реализовало проект по созданию молочного блока на молочно-товарной ферме. В рамках проекта были установлены современные участки приемки и хранения молока, оснащенные передовым оборудованием, что позволило наладить эффективную переработку молока и производство высококачественной молочной продукции. Реализация проекта от компании АгроТек Процессинг обеспечила стабильное качество продукции и укрепила позиции хозяйства в региональном агропромышленном комплексе.
    ОАО «Красное знамя»
    По разработанному техпроекту реализован первый этап по цеху розлива цельного молока 5 т/смену. В 2023г реализуется второй этап: строительство молочного завода 30т/сут с перемещением на него цеха розлива по первому этапу. Будет производится стандартная молочная продукция, мягки сыр, майонез
    ООО "АПК "Продовольственная программа"
    Оборудование для охлаждения в потоке и хранения до 90 тонн молока в сутки
    ООО "Бест Панорамик". ТМ "De Famile"
    Установка компанией АгроТек Процессинг вертикального охладителя молока объемом 20 т уличного исполнения.
    Смоленский молочный комбинат «Роса»
    По разработанному техпроекту сначала был реализован первый этап по цеху розлива цельного молока 5 т/смену. В 2023 г реализован второй этап: строительство молочного завода 50т/сут с перемещением на него цеха розлива по первому этапу.
    ООО «Аксу Агро»
    В рамках проекта были установлены современные участки приемки и хранения молока, оснащенные передовым оборудованием, что позволило наладить эффективную переработку молока и производство высококачественной молочной продукции. 
    СППССК «Фермерский»
    В ноябре 2021 года в городе Смоленск по адресу ул. Индустриальная, 9а, СППССК «Фермерский» успешно завершило реконструкцию бывшего молокоприемного пункта, превратив его в современный молочный завод мощностью 20 тонн в сутки. На предприятии было установлено передовое оборудование для производства широкого ассортимента молочной продукции, включая молоко, творог, кефир, сметану, сливочное масло и йогурт. Реализация проекта обеспечила высокое качество продукции и способствовала укреплению позиций кооператива в региональном агропромышленном комплексе.
    ООО "Ульяновская нива"

    Для обеспечения высокой производительности и качества продукции на новой молочно-товарной ферме молочный блок спроектирован с учетом современных стандартов и технологий. Использование оборудования для молочных заводов от АгроТек Процессинг позволяет оптимизировать процессы переработки молока и гарантировать стабильное качество конечного продукта.

    ООО «Дивеевское»
    В Ардатовском районе Нижегородской области ООО «Дивеевское» успешно реализовало комплексное решение по созданию молочного блока на новой молочно-товарной ферме. В рамках проекта были установлены современные участки приемки и хранения молока, оснащенные передовым оборудованием, что позволило наладить эффективную переработку молока и производство высококачественной молочной продукции. Реализация проекта от АгроТек Процессинг обеспечила стабильное качество продукции и укрепила позиции компании в региональном агропромышленном комплексе.
    ООО Группа компаний «Пышка»
    Цех по переработке молока мощностью 5 тонн в сутки Ассортимент продукции: молоко, кефир, айран, эремчек, сметана, сливочное масло, творог, мягкий сыр «Адыгейский»
    АО «Северный ключ»
    Построен новый молочный завод производительностью 5 т/смену с ростом до 10 т/сутки с производством стандартной кисломолочной линейки из собственного молока.
    ООО "Покровское"
    В Грязовецком районе Вологодской области ООО «Покровское» успешно реализовало комплексное решение от компании АгроТек Процессинг по созданию молочного блока на молочно-товарной ферме. В рамках проекта были установлены современные участки приемки и хранения молока, оснащенные передовым оборудованием, что позволило наладить эффективную переработку молока и производство высококачественной молочной продукции. Реализация проекта обеспечила стабильное качество продукции и укрепила позиции компании в региональном агропромышленном комплексе.
    ООО «Волжский продукт»
    Выполнена реконструкция нескольких цехов с оснащением их всем необходимым оборудованием для переработки молока 5 т/смену.
    Ремпутьмаш Агро
    Реализован первый этап переработки молока 20 т/сутки с собственной фермы с ростом до 100 тонн.
    ООО «Асеньевское молоко»

    На действующей ферме ООО «Асеньевское молоко» успешно реализовано решение по установке танка-молокоохладителя. В рамках проекта были внедрены современные участки приемки и хранения молока, оснащенные передовым оборудованием, что позволило обеспечить эффективное охлаждение и переработку молока для производства высококачественной молочной продукции. Реализация проекта от компании АгроТек Процессинг укрепила позиции компании в агропромышленном комплексе и способствовала стабильному качеству продукции.

    «Усадьба Деревягино», Калужская обл.

    В Калужской области «Усадьба Деревягино» успешно реализовала проект по производству сыров с белой плесенью. Для этого была проведена модернизация производственных мощностей, включающая установку современного оборудования: ванной для производства творога, пресс-тележки, молокоохладителя «Родник», площадок обслуживания емкостей СПСК «Смоленский производитель» и участка производства творога с SIP-мойкой. Реализация проекта обеспечила высокое качество выпускаемой продукции и укрепила позиции хозяйства в сегменте специализированного сыроделия.

    КФХ Клочкова

    В Пензенской области КФХ Клочкова успешно реализовало проект реконструкции здания для переработки собственного молока. По разработанному техническому проекту было выполнено оснащение объекта современным оборудованием, позволившим организовать производство молока, кефира, творога, сметаны и масла. Реализация проекта обеспечила эффективную переработку молока и высокое качество выпускаемой продукции, укрепив позиции хозяйства в местном агропромышленном комплексе.

    АО «Рассвет»
    В ноябре 2019 года в городе Усть-Лабинск Краснодарского края по адресу ул. Тельмана, 47, АО «Рассвет» успешно ввело в эксплуатацию современный молочный завод мощностью 2 тонны в сутки. На предприятии было установлено передовое оборудование для производства широкого ассортимента молочной продукции, включая молоко, кефир, ряженку, сметану, йогурт, мягкие сыры и творог. Реализация проекта обеспечила высокое качество продукции и способствовала развитию местного агропромышленного комплекса.
    ООО «Жуковское молоко»
    В деревне Жуковка Жуковского района Брянской области был успешно реализован проект по созданию современного молочного производства. На предприятии было установлено передовое оборудование для переработки молока, что позволило наладить выпуск высококачественной молочной продукции. Реализация проекта обеспечила эффективное использование местных ресурсов и укрепила позиции региона в агропромышленном комплексе.
    КФХ Игнаткина Тверь
    В апреле 2025 года в селе Юрьево-Девичье Конаковского муниципального округа Тверской области КФХ Игнаткина Тверь успешно ввело в эксплуатацию современный молочный завод мощностью 2 тонны в сутки. На предприятии было установлено передовое оборудование для производства широкого ассортимента молочной продукции, включая пастеризованное молоко, кисломолочные продукты, творог, сметану, масло, а также мягкие, полутвердые и твердые сыры. Проект обеспечил высокое качество продукции и стал важным шагом в развитии местного агропромышленного комплекса.
    СПК "Малахово", Тульская область
    1 вертикальный молокоохладитель 30 т
    СПК "Малахово", Тульская область
    1 вертикальный молокоохладитель 30 т