Молочная ферма требует современных подходов к переработке молока и хранению продукции, чтобы обеспечить высокое качество молока-сырья. Хранение молока на МТФ при температуре +4°C сразу после доения — ключевой фактор, влияющий на сортность и цену продукта. При температуре +36°C бактерии в молоке размножаются быстро, что снижает его качество. Компания АгроТек Процессинг предлагает комплексные решения для молочного блока на ферме, включая участки приемки и хранения молока, которые обеспечивают охлаждение молока, надежное хранение и автоматизацию процессов. Наши молочные технологии соответствуют строгим санитарным стандартам и подходят для ферм любого масштаба.
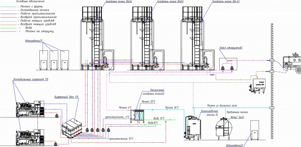
Для сохранения качества молока его необходимо охладить до +4°C сразу после доения. Это минимизирует рост бактерий и обеспечивает соответствие санитарным стандартам для приемки молока. Мгновенное охлаждение молока в потоке, реализованное с помощью передовых систем охлаждения молока, позволяет добиться этой цели. Охлаждение молока на МТФ особенно важно для крупных ферм, где большие объемы молока требуют оперативной обработки.
ООО "АгроТек Процессинг" предлагает оборудование для ферм, включая молокоохладители уличного исполнения и внутренние емкости для хранения молока, которые поддерживают стабильную температуру. Молокоохладители АТ отличаются высокой энергоэффективностью и долговечностью, что делает их идеальным выбором для молочного участка. Если вы хотите купить молокоохладители уличного исполнения, мы предоставим решения, адаптированные под ваши задачи.
Мы реализуем молочный блок под ключ, включая проектирование ферм, поставку оборудования и монтаж систем для участков приемки и хранения молока. Наши решения охватывают все этапы работы с молоком на молочной ферме:
Приемка молока на МТФ
Участок приемки молока оснащается системами точного учета с погрешностью до 0,2%, что обеспечивает контроль качества и прозрачность при отгрузке. Чтобы заказать участок приемки молока, свяжитесь с нами, и мы разработаем проект с учетом ваших потребностей. Участок приемки молока цена зависит от конфигурации, но мы гарантируем оптимальную стоимость и высокое качество.
Охлаждение молока на МТФ
Наши системы охлаждения молока обеспечивают мгновенное охлаждение молока в потоке до +4°C после доильного зала. Емкость для охлаждения молока или танк для молока подбирается индивидуально: это могут быть уличные танки для молока или внутренние резервуары. Молокоохладители для ферм от АгроТек Процессинг отличаются энергоэффективностью молокоохладителей. Купить оборудование для охлаждения молока можно выгодно, цена молокоохладителей AТ приятно удивит.
Хранение молока на ферме
Системы хранения включают емкости для хранения молока различного типа: вертикальные, горизонтальные, уличного или внутреннего исполнения. Уличная емкость для молока устойчива к внешним условиям благодаря надежной теплоизоляции. Стоимость зависит от объема и типа емкости, но мы предлагаем гибкие решения для любого бюджета. Наши технологии хранения молока обеспечивают стабильное качество продукции.
Автоматизация молочного блока
Автоматизация процессов включает автоматическую промывку оборудования кислотными и щелочными средствами, что упрощает обслуживание ферм и гарантирует соблюдение санитарных норм для приемки молока. Автоматизация молочного блока снижает трудозатраты и повышает эффективность работы молочной фермы.
Отгрузка молока
Оборудование для МТФ включает системы учета и отгрузки молока с высокой точностью. Трубопроводы из стали AISI 304 обеспечивают гигиеничность и долговечность. Поставка оборудования для молочного блока осуществляется с учетом всех требований заказчика.
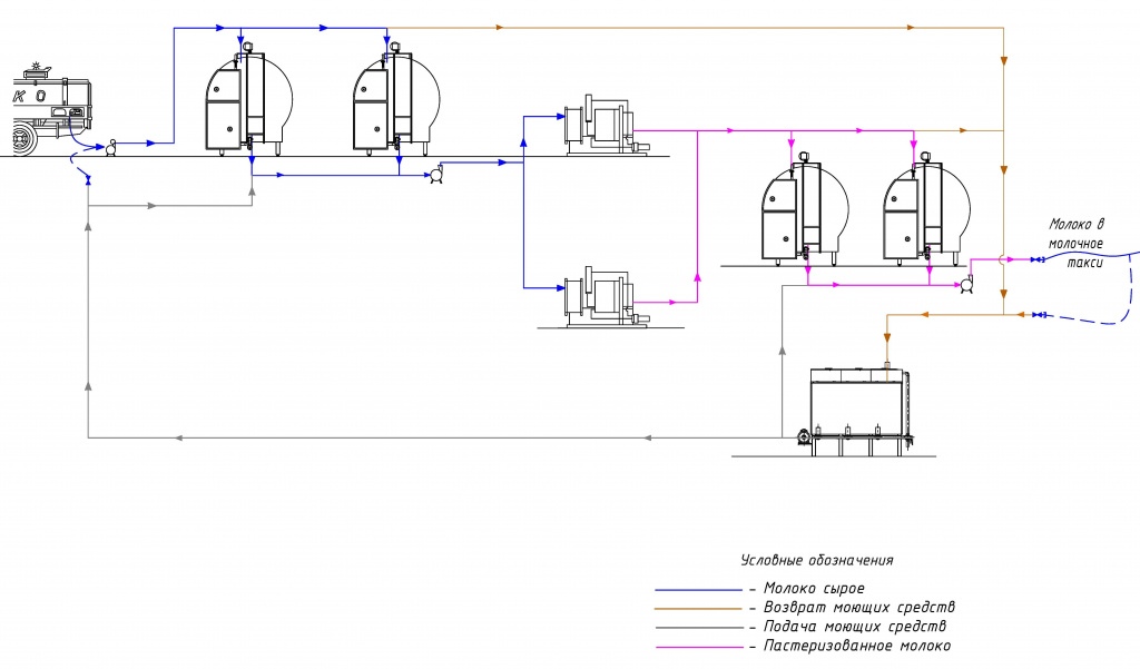
Охлаждение и хранение проблемного молока для выпойки телят требует особого подхода. Пастеризация проблемного молока уничтожает патогенные микроорганизмы, делая молоко безопасным для молодняка. Мы предлагаем:
Охлаждение молока для выпойки телят и его пастеризация выполняются с использованием специализированного оборудования для ферм. Чтобы заказать молокоохладитель для фермы или оборудование для пастеризации, мы разработаем решение, соответствующее вашим задачам и санитарным стандартам.

Молокоохладители уличного исполнения от Agroteк идеально подходят для экономии пространства и обладают рядом преимуществ:
Особенности уличных охладителей включают настройку под объемы молока и требования молочной фермы. Преимущества уличных молокоохладителей делают их востребованным решением. Если вы хотите купить уличные охладители молока или узнать стоимость уличных молокоохладителей, наши специалисты помогут подобрать оптимальный вариант.
Молочный блок проектирование — важный этап создания эффективного молочного участка. Мы учитываем:
Молочный блок на заказ разрабатывается с учетом технологий ферм и санитарных стандартов. Стоимость монтажа молочного блока рассчитывается индивидуально, с прозрачным подходом к ценообразованию. Поставка молокоохладителей АТ и другого оборудования для МТФ выполняется оперативно.
Выбор молокоохладителя зависит от нескольких факторов:
Молокоохладители для молочных заводов и ферм от ООО "АгроТек Процессинг" обеспечивают надежность и соответствие стандартам. Молокоохладители на заказ позволяют учесть особенности вашей молочной фермы.
Если вы хотите купить оборудование для молочного блока или заказать молокоохладитель для фермы, Agrotek — ваш надежный партнер. Качество оборудования обеспечит стабильную работу молочной фермы.
Готовы вывести вашу молочную ферму на новый уровень. Компания Agrotek специализируется на комплексных решениях для модернизации молочного блока на ферме, обеспечивая высочайшее качество молока и оптимизацию всех процессов. Наши передовые молочные технологии включают оборудование для МТФ, такое как молокоохладители уличного исполнения, емкости для хранения молока, танки для молока и системы для мгновенного охлаждения молока в потоке. Мы предлагаем энергоэффективные решения, которые минимизируют затраты и соответствуют строгим санитарным стандартам. Хотите купить оборудование для молочного блока или заказать участок приемки молока? Мы предоставляем молокоохладители АТ, адаптированные под любые объемы производства, и системы хранения молока, обеспечивающие надежное хранение продукции. Наши конкурентные цены на оборудование для охлаждения молока и стоимость молочного блока на МТФ делают модернизацию доступной. С ООО "АгроТек Процессинг" вы сможете оптимизировать переработку молока, повысить контроль качества и увеличить рентабельность вашей фермы благодаря автоматизации процессов и профессиональной поставке оборудования.
Если вы хотите купить системы хранения молока, заказать участок приемки молока или узнать стоимость уличных молокоохладителей, свяжитесь с нашими специалистами! Мы предоставим подробную консультацию по оборудованию для ферм, поможем с проектированием ферм и ответим на все вопросы.
ООО "АгроТек Процессинг"! — ваш партнер в создании современного молочного блока на молочной ферме! Получите молочный блок под ключ, который обеспечит контроль качества молока и повысит эффективность вашей фермы. Свяжитесь с нами сегодня и начните модернизацию уже завтра!
Продолжая использовать сайт, вы соглашаетесь на обработку файлов cookie, Пользовательским соглашением и Политикой обработки персональных данных